Detektory DHP4-metan a DHP4-CO se již nevyrábí. Pro servisní náhradu jsou určeny přístroje GC20P-FGD pro detekci hořlavých plynů a GICO20P-FGD pro detekci oxidu uhelnatého. Oba přístroje jsou samostatné stacionární jednotky s napájením 230 V / 50 Hz, dvěma signalizačními stupni, výkonovými relé, integrovanou sirénou a výstupem 24 V pro spínání havarijního ventilu. Současně umožňují připojení jednoho externího detektoru. Nové detektory byly konstruovány tak, aby umožnili snadnou náhradu bez nutnosti změny kabeláže.
Oproti staršímu řešení DHP4 mají GC20P-FGD a GICO20P-FGD několik praktických servisních výhod. Konstrukce je rozdělena na zdrojovou část a modul s detektorem, přičemž návod přímo popisuje demontáž a výměnu modulu detektoru. To zjednodušuje servis i kalibraci, protože při poruše nebo při odeslání modulu na kalibraci není nutné řešit demontáž celého přístroje. Další výhodou je samostatná indikace stavu externího detektoru: přístroje mají vyhrazené LED pro LEVEL I, LEVEL II a ZAPNUTO externího detektoru, a navíc rozlišují i chybu externího detektoru nebo jeho napájení. Technik tak přímo vidí, zda je zdrojem alarmu externí snímač nebo samotný přístroj.
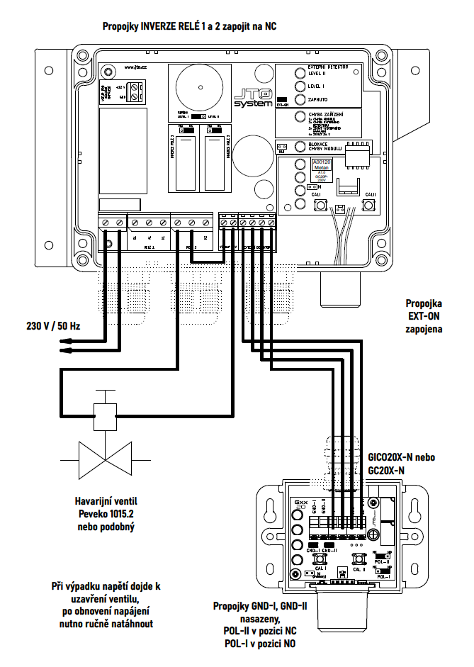
Při náhradě DHP4-metan za GC20P-FGD či DHP4-CO za GICO20P-FGD je možné použít obdobný způsob zapojení jako u původního zařízení: napájení 230 V se přivede na svorky L a N, výstupní relé stupně I a II se připojí na navazující signalizaci nebo technologické blokování a svorky +24 V / GND lze využít pro havarijní ventil. Jako externí snímače je možné použít detektory GC20X-N pro detekci hořlavých plynů nebo detektor GICO20X-N pro oxid uhelnatý.

